REQUEST A TOUR If you would like to see this home without being there in person, select the "Virtual Tour" option and your agent will contact you to discuss available opportunities.
In-PersonVirtual Tour

$ 9,820,000
Est. payment | /mo
$ 9,820,000
Est. payment | /mo
Key Details
Property Type Commercial
Sub Type Retail
Listing Status Active
Purchase Type Asset
MLS Listing ID C8066491
Year Built 2024
Property Sub-Type Retail
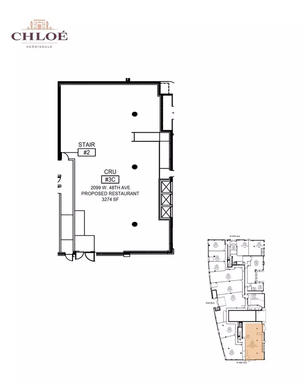
Property Description
Prime Storefront Commercial Space in Chloe Kerrisdale! An exceptional opportunity for medical offices or boutique retailers! This high-exposure storefront on W 48th Ave offers maximum visibility with a spacious and welcoming entrance. Strategically located with convenient access to the Arbutus Greenway, this space ensures a steady flow of foot traffic in one of Kerrisdale's most desirable areas. In addition to owning a prime commercial property, investors will benefit from a stable and consistent rental income, making this a lucrative opportunity for both business owners and investors alike. Don't miss this rare chance to secure a high-traffic, premium commercial space in a thriving retail and professional hub!
Location
Province BC
Community Kerrisdale
Area Vancouver West
Zoning C-2
Exterior
Roof Type Other
Building
Sewer Public Sewer
Water Public
Others
Restrictions None Known
Ownership Strata


GET MORE INFORMATION
QUICK SEARCH


